• about
    • recent works
    • newtown residence
    • balmoral residence
    • birchgrove residence
    • rozelle residence I
    • rozelle residence II
    • balmoral interiors
    • balmain residence I
    • balmain residence II
    • leichhardt apartment
    • roseville residence
    • forest lodge apartments
    • northbridge residence
    • lindfield residence I
    • lindfield residence II
    • paddington residence I
    • paddington residence II
    • bondi junction residence
    • pretty beach residence
  • contact
    • experience @ turner
    • experience @ hawkins\brown
    • experience @ tektum
    • experience @ the tugman partnership
    • experience @ wickham van eyck
  • sketchbook
  • inspiration.
Menu

R U S H

design
  • about
  • recent works
    • recent works
    • newtown residence
    • balmoral residence
    • birchgrove residence
    • rozelle residence I
    • rozelle residence II
    • balmoral interiors
    • balmain residence I
    • balmain residence II
    • leichhardt apartment
    • roseville residence
    • forest lodge apartments
    • northbridge residence
    • lindfield residence I
    • lindfield residence II
    • paddington residence I
    • paddington residence II
    • bondi junction residence
    • pretty beach residence
  • contact
  • portfolio
    • experience @ turner
    • experience @ hawkins\brown
    • experience @ tektum
    • experience @ the tugman partnership
    • experience @ wickham van eyck
  • sketchbook
  • inspiration.
Featured
paddington residence II
paddington residence II

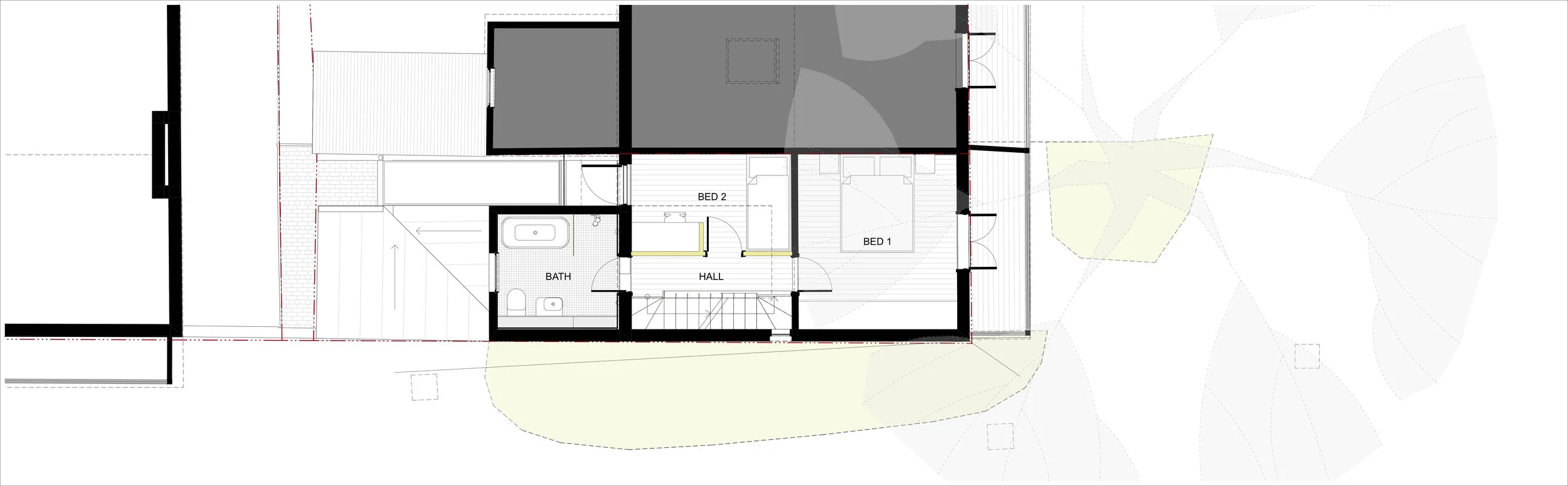
Contemporary alterations and additions to an existing 2 bedroom heritage terrace.

The constricted original plan has been opened up to allow a cross-over of uses and the integration of the outside space into the interior.

This creates the feeling of more generous external living than the plot can provide while allowing the expansion of the accommodation.

A new contemporary extension and dormer complement the heritage language of the building, and extraneous late 20th century services and detailing have been removed from the outside of the building to simplify and restore the original terrace form.

Scroll for more images…

Newtown Residence
paddington residence II
paddington residence II
paddington residence II
paddington residence II
paddington residence II
paddington residence II
paddington residence II
Back to Top

email: info@rushdesign.com.au
phone: 0405 849 843